Beschrijving
Goed onderhouden en rustig gelegen twee onder één kapwoning. De woning heeft een energielabel B, 10 zonnepanelen, een moderne keuken en praktische bijkeuken. Op de eerste verdieping zijn twee ruime slaapkamers en één kleinere. Een vierde slaapkamer valt op de tweede verdieping nog te creëren. De tuin is fraai aangelegd en heeft twee parkeerplaatsen op eigen terrein.
De woning biedt een perfecte combinatie van rustig wonen met de voordelen van een centrale ligging in de Randstad, nabij Amsterdam/Schiphol, Leiden/Den Haag en Alphen aan den Rijn.
Leimuiden beschikt over tal van voorzieningen, waaronder sportfaciliteiten, winkels, basisscholen en openbaar vervoer, allemaal in de directe omgeving. Het gezellige dorpscentrum met binnenhaven biedt diverse winkels voor de dagelijkse boodschappen. Binnen tien fietsminuten bereikt u onder meer een supermarkt, slager, bakker, groentewinkel en drogist. Leimuiden heeft een zeer centrale ligging tussen de grote steden en is omringd door water. Het dorp heeft een actief verenigingsleven en is een ideale locatie voor watersportliefhebbers, midden in het Groene Hart en nabij de grote meren.
Binnen vijf minuten bereikt u de A4 en de A44, met uitvalswegen naar Amsterdam, Den Haag, Rotterdam en luchthaven Schiphol.
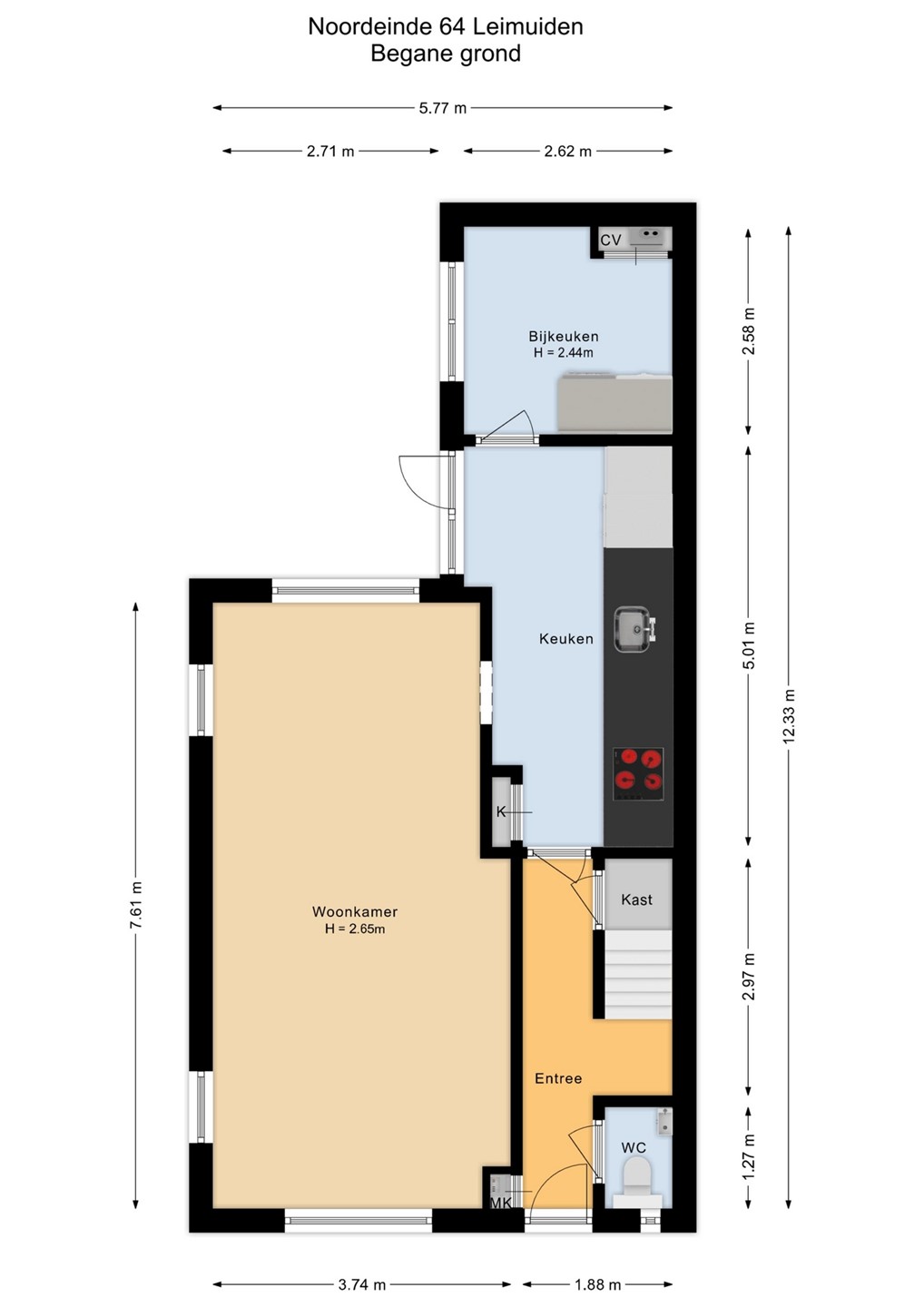
Indeling
Via de nette voortuin met parkeergelegenheid voor twee auto's op eigen terrein betreedt u de woning in de ruime hal met meterkast en een toiletruimte voorzien van verstelbaar wandcloset en een fonteintje.
De ruime keuken is modern uitgevoerd en deels vernieuwd in 2023. Het is uitgerust met diverse inbouwapparatuur, waaronder een 5-pit inductiekookplaat, combi oven/magnetron, quooker, vaatwasser koelkast en vriezer. Aansluitend bevindt zich een praktische bijkeuken met aansluiting voor wasmachine, droger, c.v. en omvormer van de zonnepanelen. Via de bijkeuken kunt u de ruime en keurig aanlegde tuin betreden. Er zijn twee schuurtjes in de tuin.
De royale woonkamer is ruim en licht door de ramen aan drie zijden en de gunstige zonligging. De PVC vloer is in visgraat motief gelegd.
Eerste verdieping
Via de trapopgang bereik je de overloop die toegang biedt tot de drie slaapkamers en de badkamer. Aan de achterzijde van de woning bevindt zich een ruime ouderslaapkamer. Deze kamer heeft veel lichtinval en is comfortabel van formaat. Ook aan de achterzijde is een tweede, kleinere, slaap-/werkkamer. Aan de voorzijde bevind zich nog een grote slaapkamer, deze is voorzien van ramen met horren en een wastafel. De badkamer beschikt over een wastafel, wandcloset en inloopdouche met regendouche.
Tweede verdieping
Via de vaste trap komt u op de tweede verdieping. Hier is recent nog een nieuw velux dakraam bijgeplaatst. Nu wordt een behoorlijk deel van de ruimte van de zolder door inbouwkasten ingenomen. Hier is echter prima nog een slaapkamer te realiseren.
Bijzonderheden
- Bouwjaar: 1947.
- Woonoppervlakte: 116,75 m².
- Perceeloppervlakte: 258 m² eigen grond.
- Net aangelegde en zonnige tuin.
- Parkeergelegenheid op eigen terrein voor twee auto's.
- Royale woonkamer en moderne keuken.
- Optioneel hebben de verkopers een klein sloepje te koop.
(foto op aanvraag)
- Centrale ligging nabij winkels, scholen, openbaar vervoer, sportvoorzieningen en uitvalswegen.
- Oplevering in overleg